目次
空室情報
上越市岩木の高床貸家が2026年3月末に退居します
4/6~4/8清掃、4/9から入居可能です
(2026年2月16日現在)
物件画像
-
外観①
東面の外観です
-
外観②
西面の外観です
-
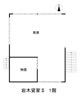
1階(間取り)
1階高床部分です
-
2階(間取り)
-
3階(間取り)
-
庭
立派な庭が有ります
-
駐車場
東側道路に面しています
-
高床車庫
雨の心配をせずに、洗濯物を大量に干すことが可能です
-
1階物置①
-
1階物置②
物置内部の写真です
-
外階段
1階から2階への外階段です
-
玄関ホール
-
キッチン
8帖ダイニングキッチンです
-
2階南10畳和室
-
2階北8畳和室
-
洗面台
-
洗面脱衣所
-
浴室
プロパンガス追い焚き付きです
-
2階トイレ①
小便器
-
2階トイレ②
洋式便器
-
勝手口
-
室内階段
2階から3階への室内階段です
-
3階10畳和室①
-
3階10畳和室②
-
3階10畳洋室①
-
3階10畳洋室②
壁一面に収納があり、大量の本の収納が可能です
-
3階5畳洋室
納戸としても使えます
-
3階トイレ
-
3階階段周り
-
外観①
東面の外観です
-
外観②
西面の外観です
-
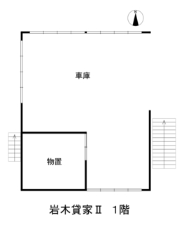
1階(間取り)
1階高床部分です
-
2階(間取り)
-
3階(間取り)
-
庭
立派な庭が有ります
-
駐車場
東側道路に面しています
-
高床車庫
雨の心配をせずに、洗濯物を大量に干すことが可能です
-
1階物置①
-
1階物置②
物置内部の写真です
-
外階段
1階から2階への外階段です
-
玄関ホール
-
キッチン
8帖ダイニングキッチンです
-
2階南10畳和室
-
2階北8畳和室
-
洗面台
-
洗面脱衣所
-
浴室
プロパンガス追い焚き付きです
-
2階トイレ①
小便器
-
2階トイレ②
洋式便器
-
勝手口
-
室内階段
2階から3階への室内階段です
-
3階10畳和室①
-
3階10畳和室②
-
3階10畳洋室①
-
3階10畳洋室②
壁一面に収納があり、大量の本の収納が可能です
-
3階5畳洋室
納戸としても使えます
-
3階トイレ
-
3階階段周り
詳細情報
| 所在地 | 〒943-0814 上越市大字岩木147番地6(家屋番号:147番6) |
|---|---|
| 築年月 | 昭和55年(1980年)4月30日新築 |
| 間取り | 5DK(洋10/和10×2/和8/DK8/洋5) |
| 最寄り駅 |
えちごトキめき鉄道 春日山駅(徒歩25分/2km) |
| 賃料 | ¥60,000 |
| 駐車場 | 屋内2台、屋外2台、計4台駐車可能 |
| 敷金 | ¥74,000(クリーニング代として償却します) |
| 礼金 | ¥0 |
- 【専有面積】1階:80.19㎡/2階:79.44㎡/3階:60.45㎡/合計:220.08㎡
- 【町内会費】別途ご負担いただきます
- 【設備】プロパンガス追い焚き給湯/合併浄化槽排水(汚水と雑排水処理)(上越メンテナンス)
大家のおすすめポイント
- 高床部分は車庫としてだけでなく、物干しや収納スペースとして等多用途にご利用いただけます
- 広く立派なお庭付きです♪
- 収納スペースが多いので荷物の多い方も安心です
お問い合わせ
この物件への入居希望、その他ご質問等ございましたらこちらからお気軽にお問い合わせください





























